Ségolène OSCAR Négociatrice
Télécharger la fiche

Appartement 4 pièce(s) 2 chambre(s) 102.65 m²

Toulouse (31000)
1 950 € CC* * Charges comprises Référence 1640

A propos de ce bien

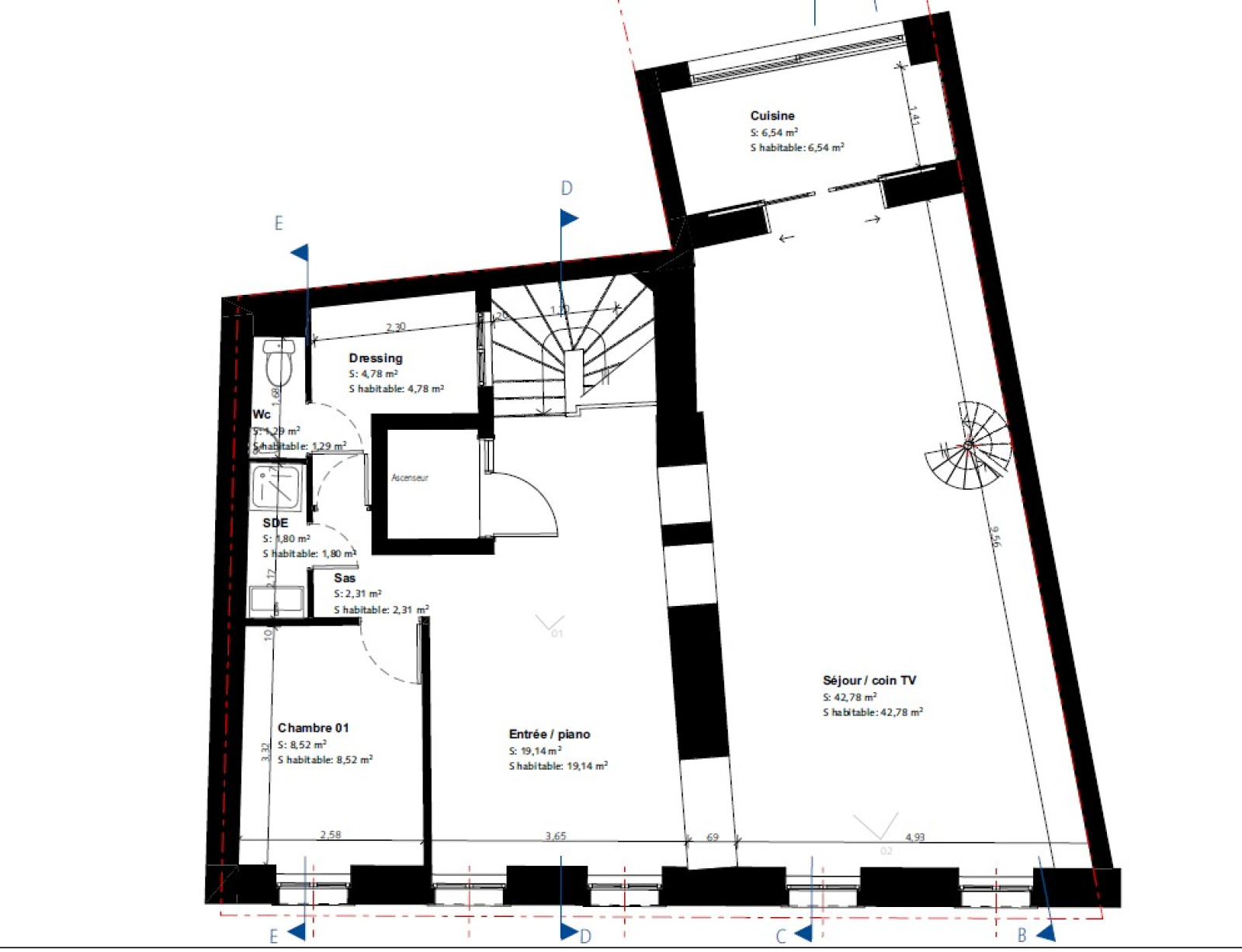
A LOUER- BIEN RARE - RUE GAMBETTA 31000 TOULOUSE- Venez découvrir ce très bel appartement meublé au 4eme et dernier étage avec ascenseur accès direct dans le logement. Idéalement situé proche CAPITOLE, une place de parking en sous sol vient compléter le tout!  

Dès l’entrée, on découvre un vaste espace pouvant servir de bureau ou de bibliothèque, qui ouvre sur un très grand salon salle à manger prolongé par une cuisine équipée entièrement ouverte. L’appartement est intégralement meublé avec goût et bénéficie de prestations soignées, notamment une climatisation réversible. Du côté nuit, une chambre, une salle d’eau, un wc et un dressing complètent ce premier niveau. Un escalier mène ensuite à une seconde chambre en suite, dotée de nombreux rangements et d’une salle de bains.

Cet appartement se distingue par sa vue dégagée sur le couvent des Jacobins et les toits de la ville, par la présence de son parking, par son emplacement privilégié, par sa luminosité et par la qualité de ses prestations, notamment le parquet massif. Libre de suite! 

 
 
 

Caractéristiques de ce bien

  • Surface 102,65 m²
  • carrez 102,65 m²
  • 2 chambre(s)
  • 1 salle(s) de bain
  • 1 salle(s) d'eau
  • construit en 1875
  • cuisine séparée (équipée)
  • 5 niveau(x)
  • 4ème étage
  • 4 étage(s)
  • ascenseur
  • accès handicapé

Diagnostics énergétiques

Consommation énergétique
A B C D E F G
Emission de gaz à effet de serre
A B C D E F G
DPE en cours

Informations financières

Loyer CC* / mois 1 950 €
Honoraires TTC charge locataire 1 096 €
Dont état des lieux 297 €
Dépôt de garantie TTC 3 670 €
Charges locatives (provision donnant lieu à régularisation annuelle) 115 €