Ségolène OSCAR Négociatrice
Télécharger la fiche

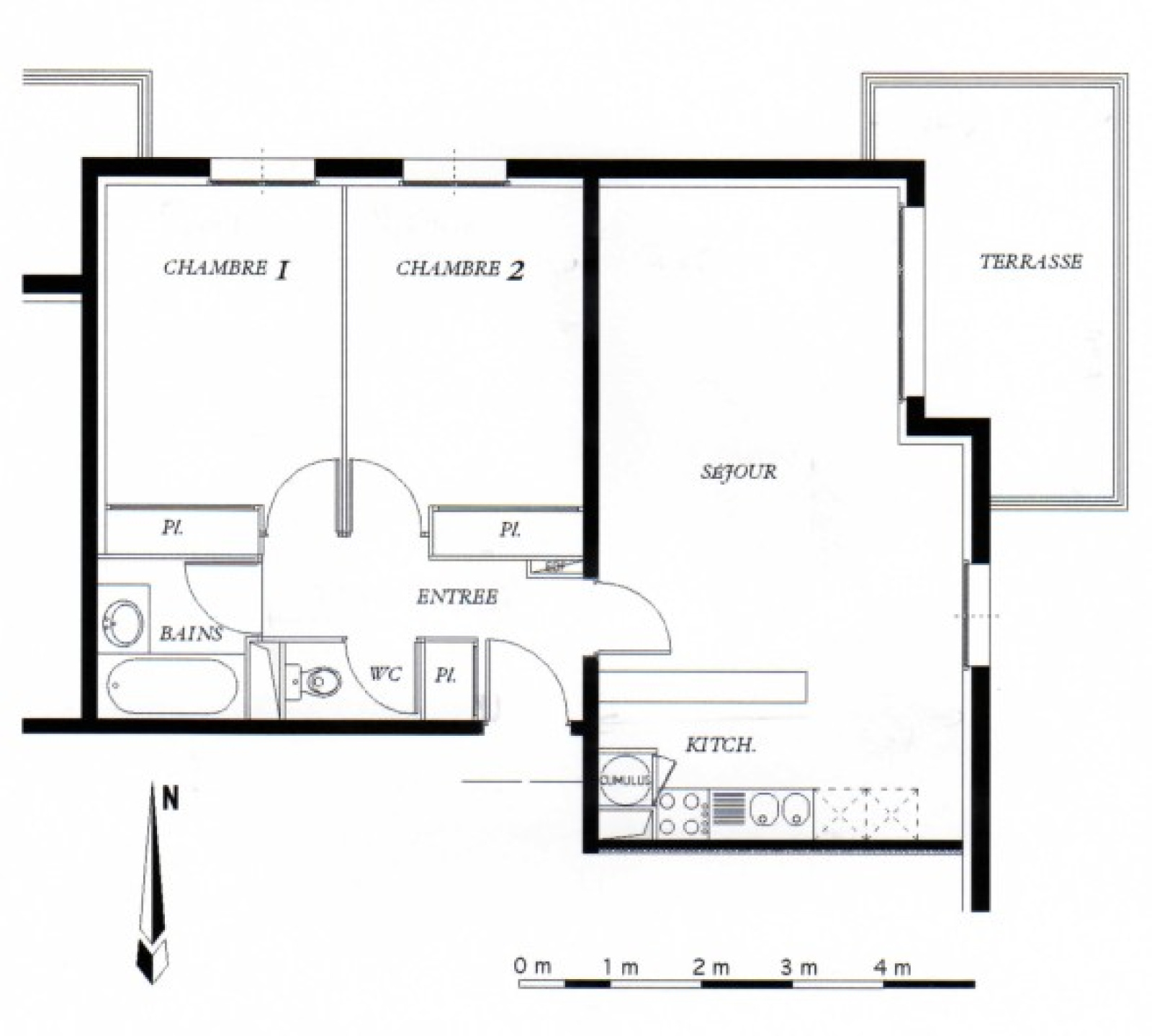
Appartement 3 pièce(s) 2 chambre(s) 60.45 m²

Toulouse (31200)
173 000 € Référence POISSONNIER

A propos de ce bien

À VENDRE - STATION LA VACHE 31200 TOULOUSE- dans une résidence sécurisée, arborée, avec gardien et piscine, venez découvrir ce bel appartement T3 de 60 m² situé au deuxième étage avec ascenseur offre un cadre de vie pratique et agréable. Le séjour, spacieux et lumineux, s’ouvre sur un coin cuisine fonctionnel et convivial. L’espace nuit se compose de deux chambres équipées de placards, d’une salle de bains et de WC séparés. Le balcon couvert, exposé à l’Est, permet de profiter d’un extérieur agréable et lumineux.

Une place de parking en sous-sol vient compléter ce bien,

Idéalement situé, l’appartement bénéficie d’un emplacement privilégié : la station La Vache – métro ligne B se trouve au pied de l’immeuble, offrant un accès rapide au centre-ville, aux pôles d’emploi et aux universités. Le quartier propose également de nombreux commerces et services accessibles à pied : supermarché, boulangerie, pharmacie, restaurants, marché de quartier, écoles et équipements sportifs. L’accès au périphérique est immédiat, facilitant tous les déplacements.

Un appartement confortable, bien placé et parfaitement adapté à une vie urbaine pratique. Libre de toute occupation. A NE PAS MANQUER

Caractéristiques de ce bien

  • Surface 60,45 m²
  • carrez 60,45 m²
  • 2 chambre(s)
  • 1 salle(s) de bain
  • construit en 2005
  • kitchenette
  • Chauffage individuel : radiateur (electrique)
  • exposition Est
  • 2ème étage
  • 8 étage(s)
  • ascenseur
  • balcon

Diagnostics énergétiques

Consommation énergétique
A B C D E F G
Emission de gaz à effet de serre
A B C D E F G

Montant estimé des dépenses annuelles d'énergie pour un usage standard est compris entre 670 € et 950 € . Prix moyens des énergies indexés sur les années 2021, 2022 et 2023 (abonnements compris).

Informations financières

Prix de vente honoraires TTC inclus 173 000 €
Taxe foncière annuelle 1 259 €

Informations de copropriété

Copropriété Oui
Lot n° 20
Nombre de lots 51
Quote part annuelle des charges 1 809,12 €

Calcul des mensualités

* Champs obligatoires